
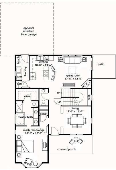
First Floor Plan
1,270 square feet
This two story home is designed for living. A private master suite at the front of the home includes a five piece bath, and a huge walk in closet! A front dining room can be easily converted into a study. A large light filled great room is perfect for entertaining with the adjacent open kitchen.
Upstairs is a kids retreat with two bedrooms two bathrooms and an upstairs game room!
Upstairs is a kids retreat with two bedrooms two bathrooms and an upstairs game room!
IMPORTANT INFORMATION
Please note that in most areas of the country, these house plans will be everything you need to build, but not necessarily everything you need to obtain a building permit.
ADDITIONAL ITEMS THAT MAY BE NEEDED
A site plan that shows where the house is going to be located on the property
A site specific soils test
Foundation and Structural Design specific to your lot and jurisdictional requirements
Septic or other utility design.
Energy Code Compliance certification.
Please note that in most areas of the country, these house plans will be everything you need to build, but not necessarily everything you need to obtain a building permit.
ADDITIONAL ITEMS THAT MAY BE NEEDED
A site plan that shows where the house is going to be located on the property
A site specific soils test
Foundation and Structural Design specific to your lot and jurisdictional requirements
Septic or other utility design.
Energy Code Compliance certification.


Second Floor Plan
910 square feet
The images and plans found on these pages are the exclusive intellectual property of Blue Stone Design Group, LLC. They are intended for personal use only and should not be reproduced or distributed. To obtain multiple licenses please contact us.
Please allow 4-6 weeks to process your order.
Please allow 4-6 weeks to process your order.
Pricing
Downloadable PDF set
Coming Soon!
Custom Changes
Contact Us